My Cart $-.--
Shop by Category
Quick Order
0
Home Interior Beads & Trim 10 ft Easytrim EZ.3 Inside Corner Panel Trim

10 ft Easytrim EZ.3 Inside Corner Panel Trim

PART ETRINCOR
Calculating price...
QUANTITY

About this item

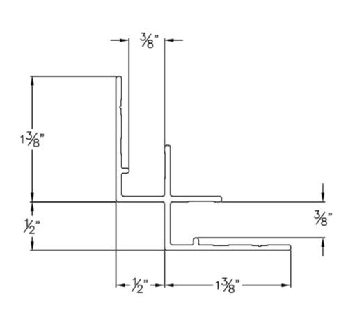
The EZ.3 provides the protection required on your fiber cement edges and a clean consistent straight line up your wall on all of your inside corners through our connecting ½” tabs extending out to both sides. The EZ.3 also features our patented ez.bump for full water management, caulk free installation, and fit & finish.

10 pcs/ctn

There are currently no resources for this product.